204サンライズレーン、チェスナットヒル、フィラデルフィア、ペンシルバニア州
204 Sunrise Lane, Chestnut Hill, Philadelphia, Pennsylvania
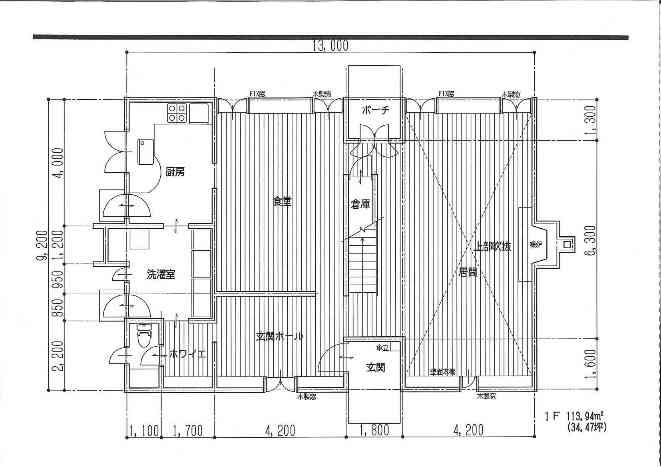
マーガレット・エシェリック邸  1959-1961(58-60)
Margaret Esherick House

                 設計;ルイス・I・カーン  1901-1974(73)
                            Louis Isadore Kahn

                         photo by komatsutakuro  2013.08
















1.スライドで見る                   
    SLIDE        15p

2.一覧で見る
    ALL         15p

3.関連 hp
    フィラデルフィア-Philadelphia
     ルイス・I・カーン(ウィキペディア)

    ルイス・カーンのエシュリック邸は階段の位置がポイントですね




    ルイス・カーン/この建築家から何を学ぶのか
    追憶のアメリカ建築〜フィラデルフィア編

    /www.google.com/maps/place/  www.google.co.jp